

Executive equestrian estate of just over 25 acres located in a desirable area of Saint-Lazare with direct access to Parc Nature les Forestiers riding trails! Enjoy a sprawling bungalow set-back from the street with large living spaces and incredible views onto an extremely private yard. Detached 2 car garage that could be used as a barn, large paddocks with 2 shelters, automatic heated waterer, chicken coop, and much more! Maintained trail meanders the length of the property giving access to riding trails.
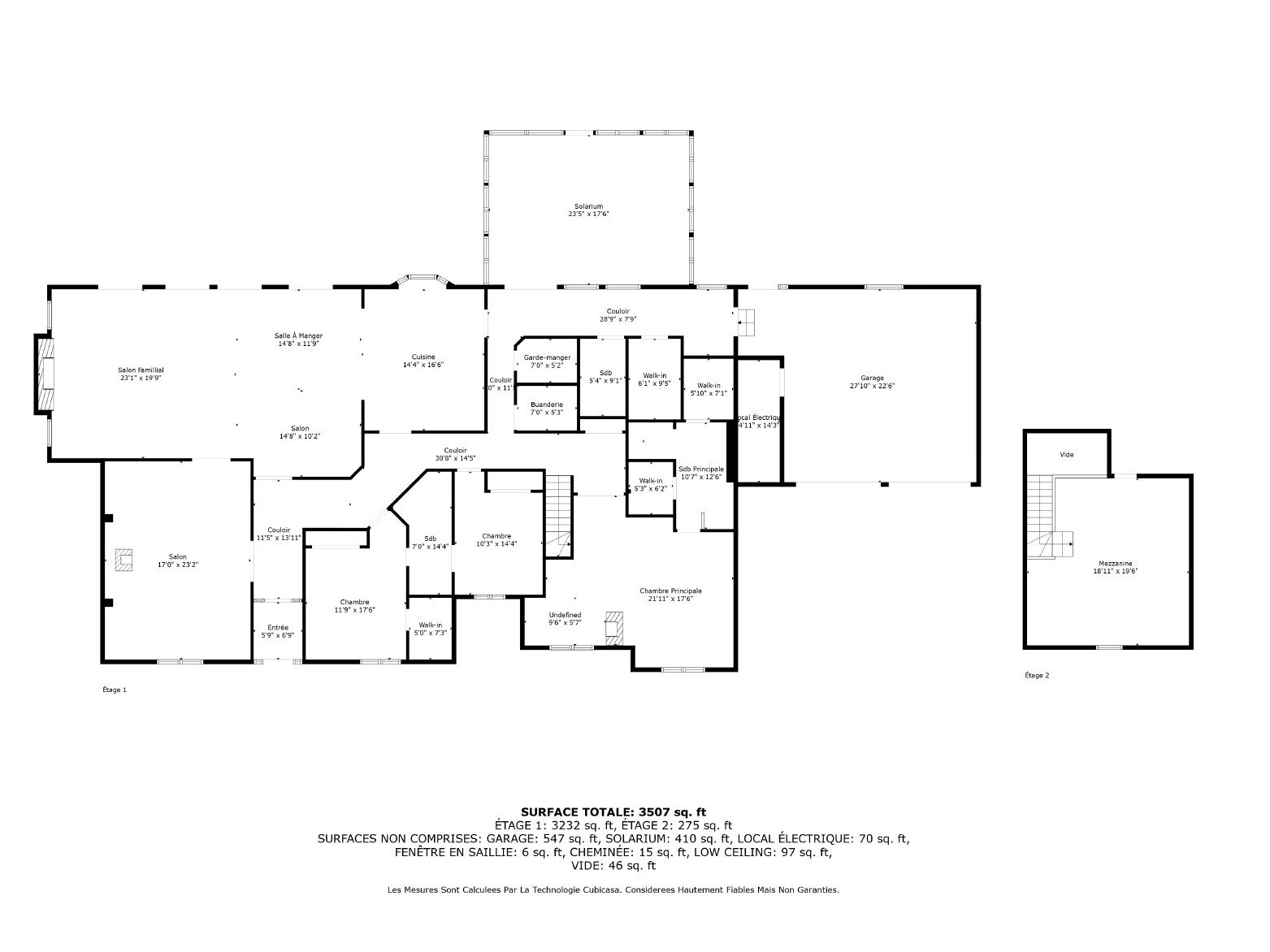
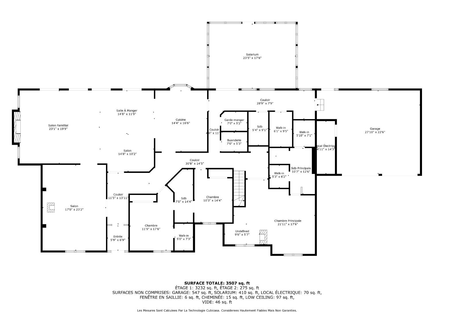
Main floor offers a large formal living room with vaulted ceilings and wood stove giving on to a large great room wood fireplace with multiple patio doors leading to stone terrace with views on the in-ground pool, paddocks and yard.
Large kitchen with oversized island and lots of storage and walk-in pantry.
Primary suite with gas fireplace and claw-foot bathtub, ensuite bathroom with heated floors, steam shower and his & hers walk-in closets.
2 additional bedrooms on the main level share a Jack & Jill renovated bathroom.
Wide hallway giving access to attached 2-car garage, also offering access to 3rd full bathroom, laundry room and large 3-season screened in porch with plexiglass windows and screens.
Mezzanine on 2nd level which could be used as a gym, home office or 4th bedroom.
Backyard includes a large in-ground pool and hot-tub.
Artesian well.
House not visible from the street with a private driveway.
Extra wide lot for the area (almost 300’)!
Zoned E*-032 and E-028 Equestrian and residential.
Fridge, stove, dishwasher, wine fridge, beverage fridge, curtains, curtain rods and blinds, light fixtures, porch ceiling fan, pool accessories (including pool automated cleaner), hot tub (has not been used in 2 years and can’t guarantee its condition).
Washer, dryer.


Do you want a second opinion? Do you think this property is perfect for someone that you know? Fill out the form below to email this listing to a friend
Thank you for your interest in this listing. If you would like to contact the broker directly, please fill out the form below and they will respond to your query as soon as possible.